NA ANTENIE: WEARIN' THAT NIGHT LIFE LOOK/ELVIS PRESLEY, JAMIESON SHAW
Studio nagrań Ogłoszenia BIP Cennik
SŁUCHAJ RADIA ON-LINE
 

Wielka hala sportowa i stadion na Morasku

Publikacja: 25.04.2016 g.16:35  Aktualizacja: 27.04.2016 g.08:54
Poznań
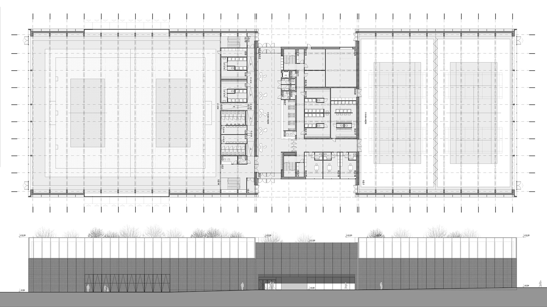
Obiekt powstanie na Kampusie Akademickim Morasko w Poznaniu. Obok niej zostanie zbudowany stadion lekkoatletyczny.
UAM Komplesk Sportowy - Piotr Musiałowski
/ Fot. Piotr Musiałowski

Spis treści:

    Zaprojektowała je warszawska firma architektoniczna, która w 2015 roku przygotowała polski pawilon na wystawę Expo w Mediolanie. 

    Hala sportowa stanie u zbiegu ulic Zagajnikowej i Umultowskiej, w okolicy uniwersyteckiej pływalni. 
    Będzie składać się z trzech pomieszczeń: hali do piłki plażowej, sztuk walki i judo oraz kortów tenisowych. 
    Stadion lekkoatletyczny będzie mieć pełnowymiarowe boisko do piłki nożnej oraz 6-torową bieżnię i tor dla rolkarzy. 

    Budowa ma się rozpocząć jesienią.

    Maciej Kluczka/mw

    https://www.radiopoznan.fm/n/MIwzII